CLT GROUP KFT. Gordos Krisztián +36 20 277 1111 raktartakaritas@gmail.com 1
info@tacar.hu
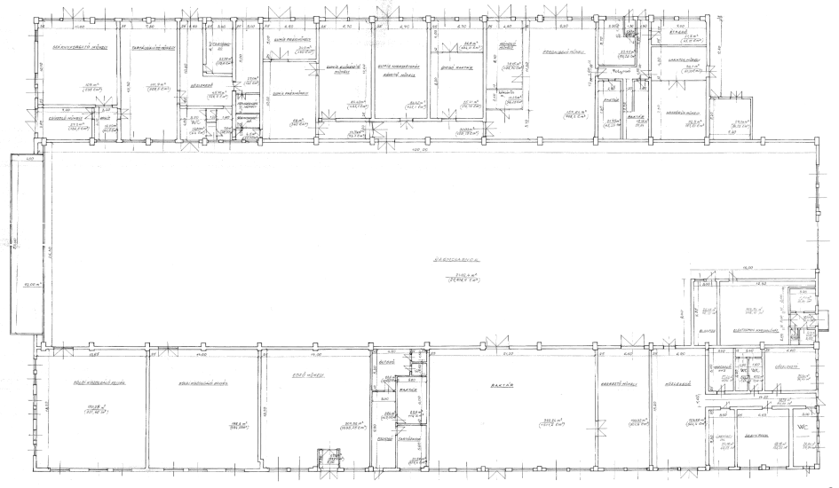
BÉRLŐTÉRKÉP
B4
GLOBAL INVEST HUNGARY HOUSE KFT. CLT GROUP KFT. Gordos Krisztián +36 20 277 1111 raktartakaritas@gmail.com